Создание рентабельных кафе, ресторанов и других объектов питания - с нуля до первого гостя
我们在俄罗斯为中国的餐馆老板创造成功的咖啡馆. 我们有很多经验.
了解更多. 写用俄语或英语!

Сомневаетесь что открывать? Не уверены в трендах? Боитесь остаться без гостей? Мы поможем - разработаем концепцию на основе проработки потребностей не менее чем 10-ти целевых аудиторий и их потребностей.
Виды наших услуг

Разработка концепции
Большая часть непрофессионально разработанных концепций объектов питания выстроена по несколько нелогичному пути и основана на одном (или нескольких) нестабильных факторов:
- на вкусе создателя,
- на некоем понимании некого тренда в регионе,
- на интуитивном ощущении от конкретной определенной локации,
- на попытке скопировать чужой успех,
- просто потому, что человек всю жизнь мечтал сделать такого рода формат.
Проработка концепции логичным путем идет от того, что определяется в первую очередь, набор целевых аудиторий гостей, которые будут посещать данный объект. В идеале это производится до того, как выбирается локация. То есть локация объекта, под определенную концепцию выбирается тогда, когда уже понятно для каких целевых аудиторий будет строиться данный объект.
Как правило, если уж мы говорим о том, что это фактор роста, или снятие фактора риска для существующего объекта, с локацией уже ничего сделать нельзя. Соответственно идет разработка концепции от обратного. Например, если объект уже расположен в спальном районе, то это означает, что делать большую ставку на обработку целевых аудиторий с потреблением услуг в дневное время (всевозможные обеды, ланчи), либо с завтраками, с 10 до 12 часов дня, это слабая цель, это слабая потребность целевой аудитории. Построить модель концепции вокруг этого нельзя, потому что потребность в такой локации именно на эти услуги достаточно низкая. Зато, достаточно высока потребность на услуги и ритуалы вечерние. Вечером в спальном районе достаточно большое количество людей хочет куда-то выйти из дома, желательно недалеко от дома, и расслабиться, провести время. Соответственно, у большей части целевых аудиторий, которых рекомендуется проработать не менее 10, а лучше не менее 20, потребности должны закрываться ритуалом в вечернее время.
Получив и выделив необходимое количество целевых аудиторий можно заняться разработкой и выявлением, так называемых артефактов концепции, то есть элементов продуктов и услуг - например меню, блюда, напитки, услуги сервиса, дополнительные опции в объекте, которые будут способствовать закрытию потребности этих целевых аудиторий. Безусловно это достаточно сложный процесс, который должен еще и в себя учитывать разбивку в рамках дня, то есть в какое время какая целевая аудитория будет активна, но подобного рода концепция, основанная именно на целевых аудиториях позволяет впоследствии работать с маркетинговыми программами. То есть, сделать таким образом, чтобы каналы рекламы, маркетинга, некие акции, которые приводят к повторным посещениям были проработаны вокруг и на основе целевых аудиторий.
.
Узнать стоимость

Экспертиза помещений (технологическая и инженерная пригодность, юридическая проверка), сопровождение сделок, подбор помещений под ключ
Виды наших услуг

Консультирование при подборе помещения под объект
Компания GastroNorma производит услугу консультирования при подборе помещения для создания на его базе объекта общественного питания. Мы производим оценку помещения на предмет технологической и инженерной готовности помещения к размещению подобных объектов – и являемся одной из немногих компаний осуществляющих подобную услугу.
Необходимость в такой услуге определилась неоднократными случаями, когда данные мероприятия не выполнялись заказчиком, и мы знакомились с уже арендованным, а еще хуже – приобретенным объектом недвижимости, в котором не были проверены возможности размещения предприятия питания. В процессе разработки технологических решений вскрывались серьезные препятствия в реализации инженерных и технологических задач, решение таких «внезапных» проблем предельно затратно и сильно увеличивает срок запуска объекта, зачастую более чем вдвое. Наиболее часто это проблема с приточно-вытяжной производственной вентиляцией, также с энергетикой и электропитанием, водоотведением. Инженерные задачи нельзя решать «на авось» — всегда следует понимать, что работать объект будет несколько лет (окупаемость у базового объекта общепита – около 2,5 лет), за это время инженерные просчеты не просто дадут о себе знать, а могут подставить под угрозу само существование объекта. Например, при неверном решении вопроса с вентиляцией помещения (вследствие допущенной ошибки при подборе помещения) появляются проблемы с запахами у соседей, что может послужить причиной закрытия объекта Роспотребнадзором. Или если применено водоотведение с искусственным побуждением (сололифты, насосы, особенно бытовые) – это аварии и остановки объекта вследствие выхода насосов из строя со временем.
Инженерные проблемы гораздо легче и дешевле предотвратить, нежели чем бороться с их последствиями уже имея потраченный на запуск бюджет и законтрактованное помещение.
Для предотвращения подобных проблем рекомендуем обратиться к специалистам нашей компании за услугой комплексного консультирования при подборе помещения.
Узнать стоимость

Этот раздел проекта является ключевым для данной отрасли. Проектирование для предприятий питания любой сложности – от небольшого фастфуда до пищевого производства.
Виды наших услуг

Технологический проект
Компания GastroNorma выполняет технологическое проектирование для предприятий питания любой сложности – от небольшого фастфуда до пищевого производства.
В отличии от так называемого «академического» проектирования, когда технолог-проектировщик только исполняет требования нормативов, не обращая внимания как по факту будут работать люди и осуществляться технологический процесс на производстве, мы выполняем проекты с учетом в первую очередь удобства работы и рациональному использованию площадей помещения, не нарушая при этом нормативов. Следует понимать, что нормативы опираются, в основе своей, на базу (с незначительными корректировками), которая была создана и разработана еще в советское время. В XXI веке давно применяются совсем другие машины и аппараты, действуют иные технологии – да даже классификация объектов сейчас ощутимо отличается от советской (например, откуда в 60-х годах было бы известно понятие «Столовая-кантина с free-flow потоком гостей»)! Также назначение объекта может с течением времени поменяться, следуя за рынком, и технологический проект должен это позволить сделать без перестройки помещений и с минимальными изменениями по инженерии.
Еще немаловажно отметить – зачастую заказчики пользуются услугами проектировщиков-технологов, состоящих в штате компаний, продающих оборудование. Это опасно тем, что на объекте появится не именно то оборудование, которое нужно заказчику для его технологического процесса, а в первую очередь то, которое хочет ему продать поставщик.
Наша компания, имея в качестве партнеров ведущих поставщиков оборудования, абсолютно независима в выборе оборудования для заказчика и руководствуется в первую очередь его интересами, бюджетом и технологической задачей.
Запросите эскизный технологический проект у наших проектировщиков – это бесплатная услуга, которая позволит понять логику подхода специалистов и увидеть Ваш объект в разрезе технологии выбранной концепции.
Узнать стоимость

Для высокого среднего чека - нужен достойный интерьер, а для быстрой окупаемости - ремонт не должен быть дорогим. Это и есть работа наших дизайнеров: классные интерьеры, о скромной стоимости которых знает только заказчик!
Виды наших услуг

Дизайн-проект интерьера, архитектурный проект
Заходя в ресторан, кафе и любой другой объект общественного питания, Гость в первую очередь обращает внимание на интерьер. Именно эффектный интерьер способен оставить превосходные впечатления и обеспечить повторное посещение, равно как и неудачный – свести на нет все усилия поваров, официантов и остальных членов команды. Значение дизайн – проекта для общественных интерьеров громадно, тем более что именно в отделке интерьера гостевых залов, как правило, кроется одна из самых серьезных статей бюджета. Хороший дизайнер это не просто художник, умеющий делать красивые эскиз и визуализации и верстать красочные альбомы – это в первую очередь архитектор, знающий как то что нарисовано еще и воплотить! Это и инженер, понимающий, что есть инженерные сети, без которых объект не сможет работать и которые имеют свои особенности монтажа. Это еще и экономист, понимающий необходимость соблюдать рамки бюджета и сокращать бюджет. И, в конце концов, это специалист с «руками» способный непосредственно на объекте внести нужные цветокоррекции, правки, декор и авторский надзор.
Именно такие специалисты, после долгого пути проб и подборов, были отобраны в качестве сотрудников и партнеров нашей компании в направлении «Дизайн-проект интрьера».
Узнать стоимость

Мы выполняем все наши проекты строго официально, имеем необходимые свидетельства и лицензии, а также согласовываем наши проекты с любыми требуемыми инстанциями.
Виды наших услуг

Проектирование инженерных сетей
Компания GastroNorma проектирование основных инженерных сетей на объекте, таких как вентиляция и кондиционирование, водоснабжение и канализация, электрооборудование и слаботочные сети.
Инженерные сети на объекте общественного питания это «кровеносная система» и «легкие» объекта. Зачастую, к сожалению, многие заказчики избегают заказывать проекты инженерных сетей (особенно на маленьких объектах), объясняя это тем, что монтажники могут выполнить подключения и без проекта. Но вряд ли кто-нибудь из таких заказчиков сядет на автомобиль, тормозная система которого была собрана рабочим без проекта, не рассчитана и не смоделирована инженером.
Последствия пренебрежения разработкой инженерных разделов разнообразны и одинаково плачевны – это и задержка строков сдачи объекта из за затруднения монтажников при строительстве объекта, и получение на выходе неправильно работающей системы (что чаще всего наблюдается в случае системы вентиляции). В конечном итоге – страдает Гость, и, как следствие – бизнес собственника объекта.
Мы выполняем проект строго официально, имеем необходимые свидетельства и лицензии, а также согласовываем наши проекты с любыми требуемыми инстанциями, такими как МЧС, РосПотребНадзор, Управляющие компании ТРК/ТРЦ и прочее.
Узнать стоимость

Мы поможем сэкономить на брендбуке без потери качества - у нас одно из самых приятных предложений на рынке профессионального графического дизайна для объектов общепита. Жмите на кнопку!
Виды наших услуг

Раззработка фирменного стиля (брендбук)
Концепция складывается из множества элементов и одним из самых ярких и ближайших к каждому посетителю элементов концепции является фирменный стиль.
Качественный, хороший фирменный стиль неспроста называется фирменным, он создает ощущение того, что все услуги и товары, которые предлагает ему данный объект выполняется и разрабатывается профессионально. Почему так происходит? Когда человек смотрит на профессионально, классно, красиво, грамотно сделанный стиль, подсознательно возникает ассоциация, что и меню будет исполнено качественно и профессионально, что в данном объекте не «намешают» ничего в напитки, что сервис будет на уровне и что даже неприятных запахов в процессе отдыха в данном объекте не появится. Что все будет на заданном, хорошем уровне. И все это человек может предположить, только глядя на вывеску, даже не начав еще заходить в объект. Вот в чем сила фирменного стиля.
Если обратить внимание, все сетевые объекты (в первую очередь мировые бренды) добиваются высочайшего качества в элементах фирменного стиля, отраженных в логотипе, в наименовании бренда, в фирменных шрифтах, в качественно отобранных цветах, в буквально каждом элементе точек касания с потребителем. Будь это сайт, листовка или буклет, кофейный стаканчик, коробка для пиццы - везде в грамотно сделанном объекте присутствует единый фирменный стиль. И этот стиль, если он сделан профессионально и качественно, достаточно быстро дает понять клиенту многое, начиная от ценовой политики объекта, заканчивая теми эмоциями, которые клиент может испытать, соприкоснувшись уже ближе с продуктом данного объекта.
Например, фирменный стиль большинства пекарен и кондитерских основан на базовых, теплой тональности, коричневых, бежевых цветах, на черном фоне. На что они похожи? Они похожи на цвет созревшего пшеничного колоса, на цвет дерева естественной обработки, то есть на нечто теплое, на нечто деревенское, в какой-то степени ремесленное. Это подсознательно привязывает потребителя к ритуалу потребления соответствующего продукта, то есть теплого ремесленного хлеба. Странно предположить, что в пекарне может быть использован ярко-голубой, с неоновым оттенком и серебристым отблеском свет. И это совершенно логично, он говорит о других эмоциях, о совершенно другом продукте.
Фирменный стиль сейчас сделан практически везде, на разного уровня качестве, достаточно просто считывается качественный фирменный стиль и доморощенный. Но, можно отметить одно, что необходимо сразу, в рамках любой концепции закладывать его разработку, и для задачи реконцепции это один важнейших целевых инструментов.
Узнать стоимость

Когда понятно, что из чего готовится, где что храниться и кто за что отвечает - воровства не будет. Каждому заведению нужен простой и грамотный производственный и складской учет - мы готовы помочь в этом.
Виды наших услуг

Производственный учет - защита от воровства персонала
Производственный учет - это важнейший из элементов зон риска или зон роста для объектов питания, ввиду того, что от качества постановки производственного учета зависит насколько четко и прозрачно производится контроль того, как и из чего производится продукция, с какой эффективностью расходуются продукты, где конкретно они хранятся, как перемещаются, как перерабатываются в полуфабрикаты, в готовые блюда.
Имея настроенный производственный учет можно увидеть, как сырье, поступившее от определенного поставщика, проходит этапы обработки, где оно в этот момент находится, на каком из складов, и как оно превращается в блюдо и затем реализовывается. Причем в хороших систевмах это можно увидеть в режиме реального времени, а ключевые показатели и вовсе удаленно, современные программы это позволяют.
Наличие отлаженной, прозрачной системы учета на объекте питания - это профилактика воровства, злоупотребления и хищения персоналом, неправильно построенного производственного процесса, когда идет слишком большая выработка отходов, неправильно посчитанные коэффициенты зачистки-ужарки-уварки-упарки, которые ведут к тому, что себестоимость в блюде посчитана неверно, из этого неверно посчитана отпускная цена, и фактическая маржинальность отличается от расчетной.
Производственный учет ставится при помощи современных систем автоматизированной обработки информации (АСУ), таких например как IKKO, R-KEEPER, TELEPAD и так далее. Системы данного рода распространены очень широко и они есть практически в каждом объекте, но зачастую они используются не более чем на 20-30% от своего возможного функционала. Настройка программ АСУ, производится, как правило, только на этапе подготовки объекта к запуску и производится достаточно поверхностно, лишь бы интерфейс позволял отражать то, что происходит в зале, можно было загружать сырье, один или два раза прогружать технологические и калькуляционные карты. На этом процесс работы над производственным учетом останавливается, происходит только работа по внедрению новых технологических карт, контроль базовых показателей экономической деятельности в АСУ. Тем не менее каждый блок технологических и калькуляционных карт нуждается в частой ревизии и корректировке. Должны хорошо отражаться складские запасы, собственник должен знать сколько денег в настоящий момент заморожено у него на складе и не допускать пересортицы и забития склада.
Возможность пользования системой учета - это возможность планирования затрат на содержание элемента закупки склада в те периоды, когда сырье становится более дорогим. С поставленным производственным учетом можно контролировать пропорции продаж низко-маржинальных, средне и высоко-маржинальных продуктов, можно отслеживать с какой степенью маржинальности продаются продукты больше всего, и постепенно менять соотношение в продаваемых продуктах от низко-маржинальных к более высоко-маржинальным, заменяя продукт за продуктом или меняя в них технологию.
Производственно-складской учет это основная точка роста каждого второго объекта, наведение порядка в системе учета дает достаточно быстрые и понятные результаты, и всегда в положительном денежном эквиваленте.
Узнать стоимость

Стоит помнить, что классные блюда и напитки - это основа всего для объекта питания и досуга. И зачастую только настоящие профессионалы способны сразу на старте установить "планку" качества. Узнайте стоимость разработки меню и постановки профессионального бара в вашем заведении
Виды наших услуг

Услуги брендшеф-повара и брендшеф-бармена
Помимо эстетической части и части удовлетворения потребности гостя, хороший бренд шеф неизбежно обязан провести анализ экономической составляющей производства блюд. То есть показатели профит, убыток, слоу\фаст отдача блюд, определение фудкоста. Создание калькуляционных технологических карт или проверка существующих. Сколько конкретно в данном блюде стоимости? А сколько этой себестоимости будет в сезон, когда овощи станут дешевле? А сколько она будет в несезон, когда овощи станут дороже? Это предельно важно знать, потому что нет ничего хуже, чем машина, работающая на высоких оборотах, на высокой выручке, но приносящая собственнику в карман не особенно много денег. Это значит, что у вас проведена огромная работа над тем, чтобы в объекте была высокая посещаемость, но объект не зарабатывает, потому что не поставлен производственный учет, калькуляционные карты не выверены, фудкост не снижена без потери качества
Что конкретно любой хороший бренд шеф должен сделать? Провести анализ, сформировать список слабых позиций, отработать слабые позиции, провести дегустации, ввести новые позиции в меню, усилить сильные позиции, разработать другую подачу, заменить посуду при необходимости. Работа бренд шефа никогда не заканчивается только на этом, потому что необходимо это разово создать и сделать так, чтобы эта система работала и впредь дальше. Для этого вводится элемент обучения персонала. Чаще всего рекомендуется применять процедуру контроля, например выезды бренд шефа в заведения для контроля качества блюд, например раз в 3 месяца.
Не следует забывать о том, что до 40-50% выручки приносит не меню, не кухня, а бар. Для большей части концепции, особенно если концепция предусматривает ритуал отдыха, вечернее время, в России и странах СНГ неизбежно употребление алкогольных напитков. Да и безалкогольных тоже: произведенные правильным образом коктейли дают невообразимую наценку! Лимонады и прочие продукты на основе воды и льда пользуются большим спросом и дают достаточно высокий профит в реализации.
Бар является для многих источником серьезной выручки. Но бар поставленный непрофессионально, с непрозрачным учетом, может быть источником больших сложностей, особенно злоупотребления персонала. Через руки барменов проходят дорогостоящие напитки, зачастую на них также накладывается функция кассиров, и через них проходят деньги. При отсутствии должного учета работы в баре, зачастую бывает, что бармены начинают воровать, злоупотреблять своими функциями, торговать своей продукцией и это разрастается до такой степени, что в это вовлекаются и администраторы и другие сотрудники заведения… И чуть ли не теневая группа незаконно обогащающихся людей, обворовывающих своего работодателя, возникает на основе объекта. Чаще всего это «растет» именно из бара.
Постановка барного меню проанализированного, обоснованного, как и меню кухни - задача №1. Разработка калькуляционных карт, так, чтобы себестоимость барной продукции была невысокой и все было подконтрольно учету - это №2, обучение сотрудников - это №3, и, обязательно, подготовка и внедрение системы контроля за работой в баре. Это задача бренд шеф-бармена. Многие не знают, что есть такая должность, услуга, такой эксперт. Но такой эксперт есть, и сетевые форматы, объекты в которых больше 10-20 давно поняли важность правильной постановки бара и внедряют ее у себя.
Узнать стоимость

Большой опыт монтажа вентиляции для объектов питания - в том числе и сложные специфические системы: газоконвертеры, гидрофильтры, рекуператоры разнных типов и прочее. Умеем решать задачи сверхмалых бюджетов.
Виды наших услуг

Монтаж инженерных сетей
Монтажные работы инженерных сетей – одно из наиболее ответственных направлений деятельности нашей компании. Качество инженерных сетей напрямую влияет на качество «жизни» как и Гостей, так и сотрудников на объекте. Не следует забывать, что инженерные сети закладываются на несколько лет, и выполнение их из непроверенных материалов руками «гаражных» мастеров, может, помимо небольшой экономии на запуске привести к огромным убыткам при эксплуатации.
На наш монтаж мы даем гарантию от одного года, работаем официально по договору. При производстве монтажных работ по нашему проекту мы даем дополнительную скидку на проектные работы, делая их, в конечном итоге, бесплатными для заказчика.
При монтаже не по нашему проекту, если мы видим решение, которе позволит сэкономить бюджет и срок, но при этом по какой либо причине не отраженное проектировщиком – мы всегда сообщаем о этом решении заказчику, так как имеем общую с ним цель – наиболее быстро и наименее затратно запустить объект.
На выполнение работ мы имеем необходимые свидетельства и лицензии.
Узнать стоимость

Строим под ключ, скурпулезно подсчитываем смету и строго следуем по ней. Сокращаем срок запуска и даем гарантию на выполненные работы.
Виды наших услуг

Отделочные работы
Компания GastroNorma производит отделочные работы имея бригады, специализирующиеся именно на объектах общественного питания. Несмотря на кажущуюся схожесть отделки кафе и ресторанов с обычными помещениями – есть множество нюансов, становящихся неприятным сюрпризом ля тех, кто привлек специалистов «общего профиля» для отделки. Это может быть как банальное непонимание задания от дизайнера и инженера, так и отсутствие опыта работ в коммерческих помещениях со своей спецификой взаимоотношений с управляющей компанией и соседями.
Выполнение отделки производится на основе согласованного дизайн – проекта и технологического проекта предприятия, а при их отсутствии — по согласованному техническому заданию на отделочные работы, являющимся приложению к договору подряда. Работы выполняются квалифицированными специалистами, имеющими допуски к соответствующим видам работ, необходимое обучение и удостоверения.
Мы выполняем отделочные работы строго официально, имеем необходимые свидетельства и лицензии.
Узнать стоимость
Заполните заявку и мы свяжем с Вами для уточнения задания.
Заполните форму - наш специалист вышлет PDF
Гастрономический ресторан, меняющий полностью свое меню каждый сезон. Высокая кухня и сложная подача блюд от шеф-повара и совладельца ресторана Сергея Яросламцева. Компания Gastronorma осуществила полное технологическое и инженерное проектирование объекта, а также контроль комплектации кухни


Гастроресторан в центре г. Санкт - Петербург
Заполните форму и мы отправим Вам пример проекта с расчетами по электронной почте
Второй проект Йована Рашеты, автора ресторана Serbish, работает на Загородном проспекте. На этот раз ресторатор избрал формат шумного стритфуд-бара — с сербского языка слово «гужва» переводится как «толпа».
Виды оказанных услуг: Раздел «Технологические решения»


Сербское кафе на Загородном пр., г. Санкт - Петербург
Заполните форму и мы отправим Вам пример проекта с расчетами по электронной почте
Семейный развлекательный центр в 2700 м2, первый проект известной телеведущей Ксении Бородиной. Центр располагает двумя большими объектами питания - кафе и рестораном, общей вместимостью больше 200 п/мест. Нами оказана услуга технологического проектирования объекта

Сеть ДРЦ Ксении Бородиной
Заполните форму и мы отправим Вам пример проекта с расчетами по электронной почте
Тематический ресторан «Доктор Виски», расположенный в клубном доме, в курортном районе г. Ялта. Сочетание огромной библиотеки виски с форматом гастро-бара, тематическими залами и смелым оформлении пространств создают один из лучших объектов города. Дизайн и авторский надзор — Дмитрий Урети.

Тематический ресторан, расположенный в г. Ялта
Заполните форму и мы отправим Вам пример проекта с расчетами по электронной почте
Проведен редизайн успешного кафе, расположенного внутри жилого комплекса. Задача - новый свежий образ в минимальном бюджете и с максимально сокращенным сроком закрытия на ремонт - была выполнена.

Кафе в закрытом жилом комплексе, СПб
Заполните форму и мы отправим Вам пример проекта с расчетами по электронной почте
Проведен редизайн и реконцепция ресторана, имевшего ранее название "Авиатор". Интерьер претерпел значительные изменений, но при этом по заданию ен мог быть переработан настолько, чтобы это привело к большим затратам. Изменилось цветовое решение, оформление оконных групп, освещение, мебель.


Ресторан с блюдами по себестоимости, Петергоф
Заполните форму и мы отправим Вам пример проекта с расчетами по электронной почте
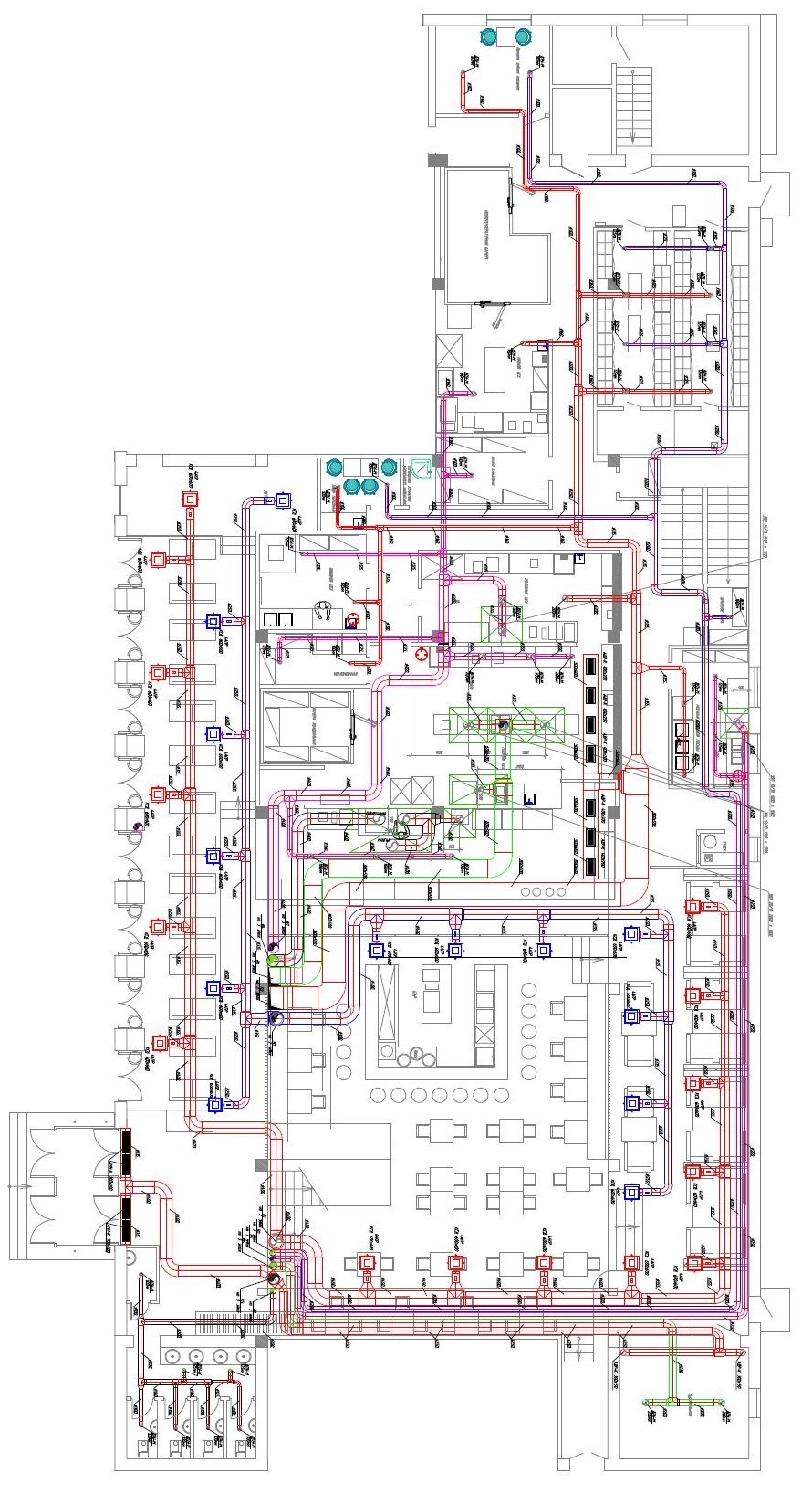
Гостиница Парк Инн Пулковская - один из крупнейших конференц-отелей Санкт-Петербурга, предлагающий великолепные условия для проведения деловых и торжественных мероприятий. В распоряжении гостей отеля - более двух десятков конференц-залов, способных вместить до 600 человек, несколько банкетных залов, VIP-зоны, 250 м2 выставочных площадей, современное оборудование, системы связи и помощь специалистов.
Виды оказанных услуг: Технологический проект зоны пищеблока, складских и заготовочных помещений и цехов, столовой персонала и т.п., суммарной площадью около 1500 м2.

Пищеблок в 1500 м2 отеля в СПб
Заполните форму и мы отправим Вам пример проекта с расчетами по электронной почте
Меню «Кахи» уважает грузинские традиции, но не отличается консервативностью. К харчо здесь приносят плошки с аджикой, перцем и проростками и называют это дело «хар-бо», хачапури подразделяют на «тот, где много сыра» и «лодочку с яйцом».
Виды оказанных услуг: проектирование раздела «Технологические решения»

Ул. Рубинштейна 24, СПб
Заполните форму и мы отправим Вам пример проекта с расчетами по электронной почте
ARKA Hotel by Ginza Project — новый бутик-отель с уникальной архитектурой, расположенный в самом центре Ростова-на-Дону.
Виды оказанных услуг: проектирование раздела «Диспетчеризация света»,

Бутик-отель, Ростов-на-Дону
Заполните форму и мы отправим Вам пример проекта с расчетами по электронной почте
Ресторан Krisof с видом на «Лахта-центр» рядом с Парком 300-летия Петербурга. Ресторан возглавляет бельгийский кондитер-шоколатье Кристоф Лаерманс, многократный призер европейских кулинарных конкурсов. Виды оказанных услуг: проектирование разделов «Технологические решения», «Вентиляция и кондиционирование», «Водоснабжение и канализация», «Электрооборудование».


Приморский просп., 80, стр. 1, Спб
Заполните форму и мы отправим Вам пример проекта с расчетами по электронной почте
Основная особенность концепции кафе - уникальный выбор кухонь в одном месте. Представлены такие кухни как перуанская, индийская, китайская и европейская в одном меню. А тот факт, что эти кухни готовят повара из Перу, Индии и Китая — делают кафе уникальным и аутентичным местом.
Виды оказанных услуг: перепроектирование технологических зон, перепроектирование и модернизация сетей вентиляции и кондиционирования


Мультиформатное кафе, Москва
Заполните форму и мы отправим Вам пример проекта с расчетами по электронной почте
В кондитерской "Чизофрения" представлено 25 уникальных чизкейков. Все вкусы могут быть представлены в виде порционных пирожных, тортов-чизкейков или же бисквитных тортов с прослойкой из чизкейка.
Виды оказанных услуг: Раздел «Технологические решения», Раздел «Вентиляция и кондиционирование», Раздел «Водоснабжение и канализация», Раздел «Электрооборудование – силовые сети», согласование с УК ТРК


Кондитерская в атриуме ТРК, СПб
Заполните форму и мы отправим Вам пример проекта с расчетами по электронной почте
Вьетнамский Корнер
Виды оказанных услуг: проектирование разделов «Технологические решения», «Вентиляция и кондиционирование», «Водоснабжение и канализация», «Электрооборудование», согласование проекта



Вьетнамский Корнер в ТРК "Саларис"
Заполните форму и мы отправим Вам пример проекта с расчетами по электронной почте
Винный бар на фудкорте.
Виды оказанных услуг: проектирование разделов «Технологические решения», «Вентиляция и кондиционирование», «Водоснабжение и канализация», «Электрооборудование», согласование проекта



Барный корнер в гастробаре "Саларис", Москва
Заполните форму и мы отправим Вам пример проекта с расчетами по электронной почте
Black Hat (первый — на Садовом кольце) — бар с легендой про ирландцев-рабов на Карибских островах и с упором на ром, виски и джин. Есть специальное коктейльное Breakfast Menu, действующее с десяти утра (!), и бутилированные коктейли.
Виды оказанных услуг: Дизайн проект, «Техноло гические решения (ТХ)», «Вентиляция, кондицио нирование (ОВиК)», «Электро оборудование (ЭО)», «Водоснабжение и канализация»



Барный корнер в гастробаре "Балчуг", Москва
Заполните форму и мы отправим Вам пример проекта с расчетами по электронной почте
Главное в этом паста-баре — это хорошая, полезная еда за принципиально небольшие деньги и дружелюбная атмосфера. Паста, которую можно взять с собой, паста как нечто простое и понятное, но при этом качественное — вот идеи, лежащие в основе концепции.
Виды оказанных услуг: технологическое и инженерное проектирование и согласование с УК


Корнер на гастромаркете Балчуг, Москва
Заполните форму и мы отправим Вам пример проекта с расчетами по электронной почте
Филиал премиального рыбного ресторана «Pescatore» предлагает очень широкий ассортимент рыбных специалитетов, для приготовления которых морские деликатесы извлекаются прямо из аквариумов с фасадов корнера. Это самый большой корнер из всех, представленных в гастромаркете «Балчуг» Виды оказанных услуг: Дизайн проект, «Технологические решения (ТХ)», «Вентиляция, кондицио нирование (ОВиК)», «Электро оборудование (ЭО)», «Водоснабжение и канализация»



Корнер на гастромаркете Балчуг, Москва
Заполните форму и мы отправим Вам пример проекта с расчетами по электронной почте
Корейскую кухню смело можно назвать одной из самых гибких в мире. В Москве ренессанс корейской кухни начинается с K-TOWN.
Особенностью технологии являюся грили-барбекю, встроенные прямо в столешницу раздачи
Виды оказанных услуг: Дизайн проект, раздел «Технологические решения (ТХ)», раздел «Вентиляция, кондиционирование (ОВиК)», раздел «Электрооборудование (ЭО)», раздел «Водоснабжение и канализация»



Корнер на гастромаркете Балчуг, Москва
Заполните форму и мы отправим Вам пример проекта с расчетами по электронной почте
Это кафе открыла крупная рыбная компания «Ф.Э.С.Т.». У нее свой флот, который ловит рыбу и креветок на Севере и на Дальнем Востоке. Треску тут жарят, готовят на пару и подают с картофельным пюре и рисом, а еще делают из нее сугудай.
Виды оказанных услуг: Дизайн проект, раздел «Технологические решения (ТХ)», раздел «Вентиляция, кондиционирование (ОВиК)», раздел «Электрооборудование (ЭО)», раздел «Водоснабжение и канализация»



Корнер на гастромаркете Балчуг, Москва
Заполните форму и мы отправим Вам пример проекта с расчетами по электронной почте
Китайский фаст-фуд с традиционным, ожидаемым и для многих желанным меню. Тут порции очень щедрые, даже больше тех, что ожидаешь, когда смотришь в меню с картинками. Есть спринг-роллы, супы, лапша и свинина в апельсиновом соусе.
Виды оказанных услуг: раздел «Вентиляция, кондиционирование (ОВиК)», раздел «Электрооборудование (ЭО)», раздел «Водоснабжение и канализация»



Корнер на гастромаркете Балчуг, Москва
Заполните форму и мы отправим Вам пример проекта с расчетами по электронной почте
Кафе с настоящей грузинской кухней, хинкали считают одними из лучших в Москве. Ассортимент, несмотря на скромную площадь кафе по-кавказски щедр.
Виды оказанных услуг: Эскизный дизайн проект с разработкой визуализации, раздел «Технологические решения (ТХ)», раздел «Вентиляция, кондиционирование (ОВиК)», раздел «Электрооборудование (ЭО)», раздел «Водоснабжение и канализация»


Корнер на гастромаркете Балчуг, Москва
Заполните форму и мы отправим Вам пример проекта с расчетами по электронной почте
Сетевой формат поке-энтузиастов, продвигающих знаменитые уже во всем мире блюда гавайского (изначально) происхождения. Пять видов: с тофу, индейкой, неркой, креветками и тунцом, также гостю могут заменить рис на киноа или булгур.
Виды оказанных услуг: Разделы «Технологические решения», «Вентиляция и кондиционирование», «Водоснабжение и канализация», «Электрооборудование – силовые сети».


Корнер на гастромаркете Балчуг, Москва
Заполните форму и мы отправим Вам пример проекта с расчетами по электронной почте
Необычный для фаст-фуда формат – основа продукта разнообразные супы, подаваемые в стаканах. Также предлагается кофе из специально отобранного зерна и редкие в России покет-сендвичи, которые очень удобно есть (так как они «запечатаны» со всех сторон.
Виды оказанных услуг: дизайн-проект, технологический проект.



Корнер на фудкорте "Шкиперский Молл", СПб
Заполните форму и мы отправим Вам пример проекта с расчетами по электронной почте
Китайское кафе на Казанской улице. Фирменное блюдо — китайские лепешки из бобовой муки - цзяньбины: с курицей в пяти специях, со свининой-барбекю, с говядиной. Альтернативный вариант обеда — более очевидные азиатские закуски, вроде капусты кимчи и битых огурцов, и мясо в кисло-сладком соусе. Закусочная «Вай Чайна» получилась аккуратной и светлой, а цены — дружелюбными.
Виды оказанных услуг: Дизайн-проект, технологический и инженерные проекты.



Аутентичное кафе с цзянбинами, Казанская ул, СПб
Заполните форму и мы отправим Вам пример проекта с расчетами по электронной почте
Производство хлеба, выпечки и кондитерских изделий полного цикла, предназначенное для снабжения до пяти пекарен-кондитерских. Проведен полный комплекс работ — от подбора помещения и проектирования всех разделов, до строительства, отделки, комплектации и запуска.







Выпуск ХБИ, хлеба и кондитерских изделий
Заполните форму и мы отправим Вам пример проекта с расчетами по электронной почте
Производство хлебо-булочных изделий и полуфабрикатов из слоеного теста, расположенное на ул. Некрасова, в самом центре СПб. Наши специалисты произвели технологическое проектирование этого производства


Выпуск изделий из слоеного теста, а также ХБИ
Заполните форму и мы отправим Вам пример проекта с расчетами по электронной почте
Теперь тем, кто хочет быстро перекусить, не придется выбирать между хот-догом и гамбургером - встречайте новый наимоднейший формат - пастерия! Настоящая итальянская паста в возможности формата Take-Away - это действительно здорово!
Мы рады, что смогли помочь в запуске комплексом проектных разделов.


Гастромаркет "Центральный", Москва
Заполните форму и мы отправим Вам пример проекта с расчетами по электронной почте
Представитель ведущей ресторанной сети китайской кухни в городе Санкт - Петербурге. Мы выполнили модификацию уже существующего ресторана - установили систему гидрофильтрации с угольного гриль - бара

Ресторан китайской кухни
Заполните форму и мы отправим Вам пример проекта с расчетами по электронной почте
Великолепный вид на Выборжскую крепость и русская кухня в отличной подаче - во что отличает данный ресторан. Однако поварам нужно было перестроить технологию по современные реалии и новые задачи - в чем мы и помогли, спроектировав кухню заново

Ресторан в лучшей локации города
Заполните форму и мы отправим Вам пример проекта с расчетами по электронной почте
В модном и популярном гастробаре все хорошо и с гостями, и с популярностью - только вентиляция, оставшаяся "в наследство" от старых владельцев, доставляла хлопот. Теперь все исправлено - система перемонтирована и усилена, без остановки объекта

Модный гастробар в центре города
Заполните форму и мы отправим Вам пример проекта с расчетами по электронной почте
Ресторан на Петроградской стороне, уникальный своей специализацией - блюдами на основе речных и озерных раков.
Компания "ГастроНорма" выполнила проектирование и монтаж систем вентиляции и кондиционирования в этом объекте


Ресторан на Петроградской стороне
Заполните форму и мы отправим Вам пример проекта с расчетами по электронной почте
Модная бургерная на Комсомола,2. Помимо традиционного ассортимента бургеров с авторской подачей, данный концепт радует гостей еще и хорошим ассортиментом авторских коктейлей. Компания "ГастроНорма" выполнила проектирование сетей вентиляции и кондиционирования.

Модная бургерная
Заполните форму и мы отправим Вам пример проекта с расчетами по электронной почте
Первый объект данной популярной сети в г. Москва. Две дровяные печи на разных уровнях великолепного помещения в самом центре Москвы. Нашими специалистами выполнено технологическое и инженерное проектирование


Популярная неаполитанская пиццерия
Заполните форму и мы отправим Вам пример проекта с расчетами по электронной почте
Первый объект данной популярной сети в г. Краснодар. Высочайший уровень качества и аутентичности неаполитанской пиццы традиционно обеспечивают дровяные печи. Нашими специалистами выполнено технологическое проектирование


Популярная неаполитанская пиццерия
Заполните форму и мы отправим Вам пример проекта с расчетами по электронной почте
Прекрасный ресторан настоящей сербской кухни, за аутсентичность которого отвечает команда выходцев из этой страны. Мы помогли этому, уже успешно работающему ресторану, стать удобнее для сотрудников - была полностью переделана кухня - технология и вентиляция




Ресторан настоящей сербской кухни
Заполните форму и мы отправим Вам пример проекта с расчетами по электронной почте
Сотрудникам этого уютного кафе было неудобно работать на кухне - и мы пришли к ним на помощь, перепроектировав ее. Заодно было выполнено расширение кухни и обеспечено соответствие нормативам


Уютное кафе на Васильевском о-ве
Заполните форму и мы отправим Вам пример проекта с расчетами по электронной почте
Fra.Telli – итальянский ресторан, выполненный в светлых теплых тонах, и пронизанный солнечными лучами, благодаря особенной структуре остекления ТЦ «Миллер» на севере Санкт-Петербурга. Нашими специалистами произведен полный комплекс строительных и отделочных работ на данном объекте.

Итальянский ресторан в ТЦ «Миллер»
Заполните форму и мы отправим Вам пример проекта с расчетами по электронной почте
"Бубликс Кофе" - кофейня с функцией пекарни неполного цикла, а также кондитерской. Выполнено комплексное проектирование - технологические решения, вентиляция и кондиционирование, дизайн - проект интерьера. Также нашими специалистами произведен монтаж вентиляции на этом объекте




г. Санкт-Петербург, ул Катерников
Заполните форму и мы отправим Вам пример проекта с расчетами по электронной почте
Размещен в самом центре Киева в непосредственной близости от Художественной галереи. Интерьер выполнен с применением дизайнерской мебели и света. В оформлении применялись природные оттенки, что дарит посетителям ощущение уюта и комфорта. Архитекторы: Урети Дмитрий, Игорь Редкин, Андрей Ломакин.

Современный и респектабельный. г. Киев
Заполните форму и мы отправим Вам пример проекта с расчетами по электронной почте
г. Киев. Единственный в Украине концептуальный ресторан виски. Индивидуально разработанные элементы мебели, приятная работа с цветами и фактурами сделали эту локацию неповторимой. Дизайн-проект с надзором в составе архитектурного бюро «Gorn Group». Архитекторы: Урети Дмитрий, Редкин Игорь.

Единственный в Украине концептуальный ресторан виски
Заполните форму и мы отправим Вам пример проекта с расчетами по электронной почте
Пекарня — кондитерская в г. Санкт-Петербург, расположена на ул. Нахимова, 9. Выполнен полный комплекс работ — начиная от подбора помещения и определения концепции, проектирование всех необходимых разделов, ряд согласований (УК ЖК, КГА), строительство и полная комплектация объекта.








Заполните форму и мы отправим Вам пример проекта с расчетами по электронной почте
Пекарня — кондитерская в г. Санкт-Петербург, Варшавская 6к2, площадью 62 м2. Выполнен полный комплекс работ — начиная от подбора помещения и определения концепции, проектирование всех необходимых разделов, ряд согласований (УК ЖК, КГА), а также строительство и полная комплектация объекта.








Заполните форму и мы отправим Вам пример проекта с расчетами по электронной почте
Пекарня — кондитерская в г. Санкт-Петербург, Пискаревский пр-т 1, площадью 70 м2. Выполнен полный комплекс работ — начиная от подбора помещения и определения концепции, проектирование всех необходимых разделов, ряд согласований (УК ЖК, КГА), а также строительство и полная комплектация объекта.








Заполните форму и мы отправим Вам пример проекта с расчетами по электронной почте
Пекарня — кондитерская в г. Санкт-Петербург, Дачный пр-т 21 к1, площадью 73 м2. Выполнен полный комплекс работ — начиная от подбора помещения и определения концепции, проектирование всех необходимых разделов, ряд согласований (УК ЖК, КГА), а также строительство и полная комплектация объекта.








Заполните форму и мы отправим Вам пример проекта с расчетами по электронной почте
Кафе - пекарня в г. Санкт-Петербург, Малая Конюшенная д.12, площадью 125 м2. Выполнен полный комплекс работ — начиная от подбора помещения и определения концепции, проектирование всех необходимых разделов, ряд согласований (УК ЖК, КГА), а также строительство и полная комплектация объекта.








С функцией кафе
Заполните форму и мы отправим Вам пример проекта с расчетами по электронной почте
КАутентичная японская кухня в г. Санкт-Петербург, Владимирский пр-т д.15. Выполнен полный комплекс работ — начиная от подбора помещения и определения концепции, проектирование всех необходимых разделов, ряд согласований (УК ЖК, КГА), а также строительство и полная комплектация объекта.








Первый объект мировой сети в РФ
Заполните форму и мы отправим Вам пример проекта с расчетами по электронной почте
Пожилой ресторан нуждался в реконцепции - и мы провели ее, омолодив объект, проработав в режиме ограниченного бюджета переоформление интерьера, обновив айдентику и фирменный стиль обьекта.



Реконцепция ресторана "Авиатор"
Заполните форму и мы отправим Вам пример проекта с расчетами по электронной почте
Несмотря на малые размеры, "островкам" в ТРК требуется поный комплект проектной документации, ведь без этого инженерная служба комплекса не даст разрешения на возведение объекта, каким бы ни был его масштаб. Мы знаем какк сделать и согласовать документацию в таком случае .


Заполните форму и мы отправим Вам пример проекта с расчетами по электронной почте
Самая быстрорастущая отечественная франшиза - ДОДО Пицца. Компанией Gastronorma выполнен комплекс проектных работ по проектированию инженерных сетей в пиццерии ДОДО Корсаков


Пиццерия в г. Корсаков, Приморский край
Заполните форму и мы отправим Вам пример проекта с расчетами по электронной почте
Самая быстрорастущая отечественная франшиза - ДОДО Пицца. Компанией Gastronorma выполнен комплекс проектных работ по проектированию инженерных сетей и технологический проект в пиццерии ДОДО Балашиха


Пиццерия в г. Балашиха
Заполните форму и мы отправим Вам пример проекта с расчетами по электронной почте
Самая быстрорастущая отечественная франшиза - ДОДО Пицца. Компанией Gastronorma выполнен комплекс проектных работ по проектированию инженерных сетей в пиццерии ДОДО Ханты-Мансийск

Пиццерия в г. Ханты - Мансийск
Заполните форму и мы отправим Вам пример проекта с расчетами по электронной почте
Самая быстрорастущая отечественная франшиза - ДОДО Пицца. Компанией Gastronorma выполнен комплекс проектных работ по проектированию инженерных сетей в пиццерии ДОДО Губкин

Пиццерия в г. Губкин
Заполните форму и мы отправим Вам пример проекта с расчетами по электронной почте
Самая быстрорастущая отечественная франшиза - ДОДО Пицца. Компанией Gastronorma выполнен комплекс проектных работ по проектированию инженерных сетей в пиццерии ДОДО Москва

Пиццерия в г. Москва
Заполните форму и мы отправим Вам пример проекта с расчетами по электронной почте
Аутентичная пекраня с моно-продуктом, давшим название и концепту - Чешский Трдельник. Компанией Gastronorma выполнен комплекс проектных работ по дизайн - проекту и проектированию инженерных сетей, а также технологическим решениям и согласованию с УК ТРЦ.

Пекарня в г. Санкт-Петербург
Заполните форму и мы отправим Вам пример проекта с расчетами по электронной почте
Первый и самый крупный в Санкт - Петербурге центр виртуальной реальности, который сами создтели еще называют "Центром перемещения во времени". 20 ячеек, компании до 4-х человек в интерактивной программе.
Наша компания выполнила проектирование слаботочных сетей в данном объекте

Заполните форму и мы отправим Вам пример проекта с расчетами по электронной почте
Запросите бесплатный эскизный проект прямо сейчас. Сократите срок проектирования на 70%!
Заполните заявку и наш инженер свяжется с Вами для уточнения задания


Меня зовут Данил Герасимиди, и я являюсь основателем и руководителем компании GastroNorma. В сфере запуска объектов HoReCa работаю более десяти лет - вся трудовая биография связана с этой областью. В течении этого времени я постоянно сталкивался с потребностью иметь квалифицированную команду для решения всего многобразия задач, возникающих в процессе запуска (часто еще и в режиме отсутствия сроков на их решение). И такая команда была создана!
Цель нашей работы - создать порядок, удобство и выгоду тем, кто задумал запустить свой объект общепита или досуга, особенно тем, кто делает это впервые. И иногда даже простая короткая телефонная беседа может сэкономить миллионы в бюджете запуска, а нервов и сроков - просто не перечесть.
Также для нас важно, чтобы решения на объекте были максимально передовыми и качественными, обеспечивали не только удовлетворение требованиям нормативов и правил, а еще и были технологичными, удобными, доступными к реализации - и экономически эффективными. Да, мы в числе немногих компаний, чья цель - не увеличить затраты заказчика, а уменьшить их. И мы умеем это делать грамотно.
Длинная и неразрывная цепочка рекомендаций от заказчиков, длящаяся от объекта к объекту, от человека к человеку много лет - наша лучшая награда и показатель качества нашей работы. Присоединяйтесь!
Данил Герасимиди - руководитель компании
ООО "ГастроНорма" - действительный член СРО проектировщиков и изыскателей
СРО-П-180-06022013.
Допуск на проектирование объектов любого типа, кроме особо опасных.
Действует и регулярно обновляется страхование ответственности проектировщика.
Ответственность застрахована на 5 000 000р.

Заполните форму - наш специалист вышлет PDF


От ресторана - до столовой, от кафе - до ночного клуба, от бара - до буфета крупного отеля: в целом более 36 типов объектов общепита освоены проектировщиками нашей компании за все время работы
Для обеспечения полной уверенности в соотвествии проекта самым последним изменениям федеральных нормативов, а также муниципальным нормативным актам, что наиболее актуально для крупных городов.
В отличии от проектировщиков, работающих у компаний - поставщиков оборудования, мы не "скованы" необходимостью подогнать проектное решение под продаваемый ассортимент оборудования - мы можем только порекомендовать определенные модели, и (по просьбе заказчика) - подсказать дилера по каким либо определенным позициям в спецификации.
Запрос на технологический проект


Наш ведущий дизайнер Дмитрий Урети имеет высшее архитектурное образование и разрабатывает дизайн-проект исключительно в строгом соответствии нормативам
Обладая большим опытом в разработке проектов именно объектов общественного питания и отдыха, запуск которых всегда сопряжен с нехваткой сроков строительства, выработаны механизмы и подобраны исполнители для быстрой реализации проекта.
Запрос на портфолио дизайнера


Выбранная специализация - по объектам питания и досуга - позволила нам нарастить большой опыт решения практических задач по воздухообмену для подобных объектов. Специфика таких объектов требует нестандартного подхода к решению задач. Выполнение подобных работ требует серьезной квалификации и ответственного подхода. Для полной гарантии соблюдения норм, каждый наш проект проходит нормоконтроль сотрудниками Ростехнадзора.
Получите возможность создать объект общепита даже в тех помещениях, в которых ранее вам не представлялось это возможным
Разработка решений по воздуху при таком оборудовании требуют специального опыта и специфического оборудования.
Запрос на проект вентиляции

Проект электросетей - важен не только для качественного монтажа этих сетей. В первую очередь это пожарная и эксплуатационная безопасность - а значит безопасность гостей, сотрудников и соседей
Исполнение в рамках нормативов при соблюдении разумной экономии расходных материалов - это именно то, что ждет любой заказчик от проектировщика. И это именно то, что предлагает наша компания
Если ваш объект находится на территории фудкорта или ТРК, вам необходим согласованный проект электросетей для допуска строителей на объект - мы согласовываем проект с управляющей компанией ТРК самостоятельно и без доплат.
Запросите стоимость проекта электросетей не откладывая!
Срок разработки проекта - от 5 рабочих дней
Запросить проект ЭО

Для эффективного запуска и успешной работы объекта общепита, юристу недостаточно просто иметь образование - обязателен опыт и практика в ведении подобного рода процедур.
Запрос к юристу
1
Комплексное проектирование и строительство предприятий общественного питания, ресторанного и гостиничного бизнеса
Политика конфиденциальности
Редактируемый текст
Данный сайт использует Cookie
Редактируемый текст